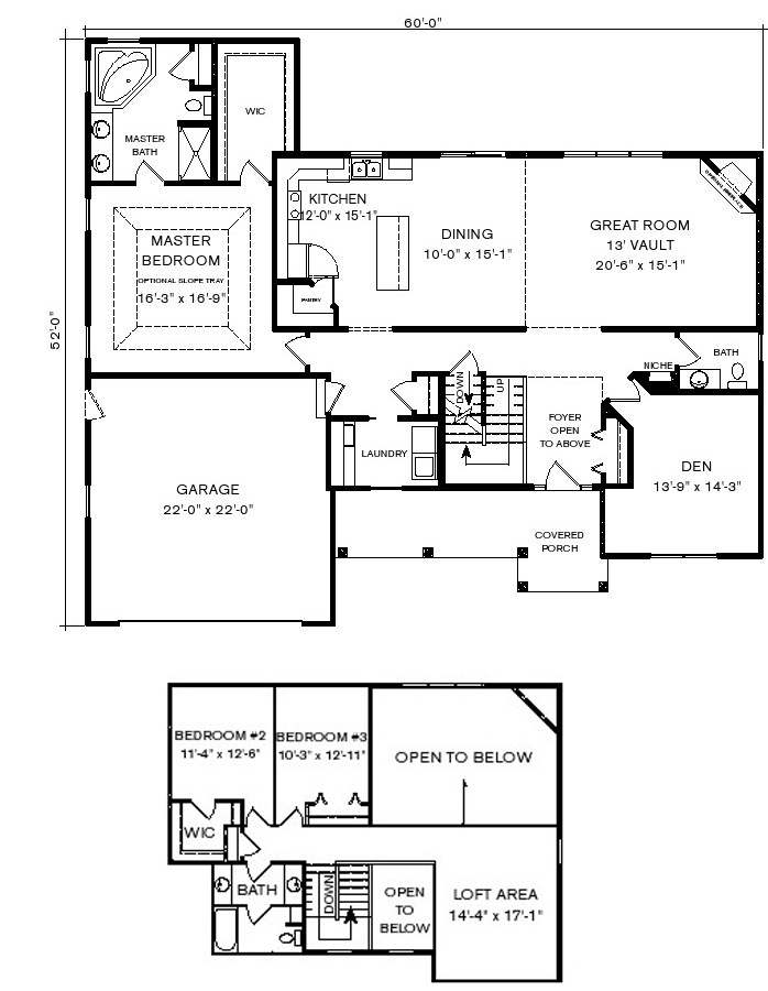
Quincy

403C
3 Bedroom
2 1/2 Bath
2,725 Sq. Ft.
Quincy
Quincy

http://www.windsorbuilds.com/our-floorplans/quincy/

Windsor Building Systems Amwood Homes, Inc.

Request to be contacted